INFORMATION
- 2025.12.05
- 【グレースコート】ご成約のお知らせ
- 2025.12.04
- 【グレースコート】ご成約のお知らせ
- 2025.12.01
- 12月13日・14日イベントのお知らせ♥
- 2025.11.28
- 【グレースコート】ご成約のお知らせ
- 2025.11.22
- 【山一建設ホームページ】リニューアルのお知らせ
- 2025.11.20
- 【グレースコート】ご成約のお知らせ
- 2025.11.10
- 【グレースコート】ご成約のお知らせ
- 2025.11.06
- ウィンターイルミネーションのお知らせ☆彡
- 2025.11.02
- 【グレースコート】ご成約のお知らせ
- 2025.10.24
- ご成約のお知らせ(栄町1丁目 387坪売地)
- 2025.10.24
- 【グレースコート】青梅市の価格更新物件情報です☁
- 2025.10.11
- 10月18日・19日イベントのお知らせ♥
- 2025.10.04
- 【グレースコート】ご成約のお知らせ
- 2025.09.22
- ご来場キャンペーンのご案内【期間限定】 ♪
- 2025.09.08
- 【グレースコート】ご成約のお知らせ
土地買取システム
物件詳細この物件は会員様専用物件です。
会員登録ボタンから会員登録(無料)しログインすると全ての情報がご覧いただけます。
緑豊かな公園や商業施設、教育機関が徒歩圏内に揃う便利な立地に3区画の分譲地をご用意。 オール電化、IHヒーターや食洗機付のシステムキッチン、暮らしを彩る充実の仕様が自慢です。 大切な家族を地震から守る制震工法「TRCダンパー」も標準装備! 人と自然が共生する穏やかな羽村市は、子育て世代の方にもピッタリのエリアです。
羽村市緑ヶ丘4丁目 土地
2,360万円
こちらをクリックし会員登録(無料)後、ログインすると全ての情報がご覧いただけます。
-
【外観】
-
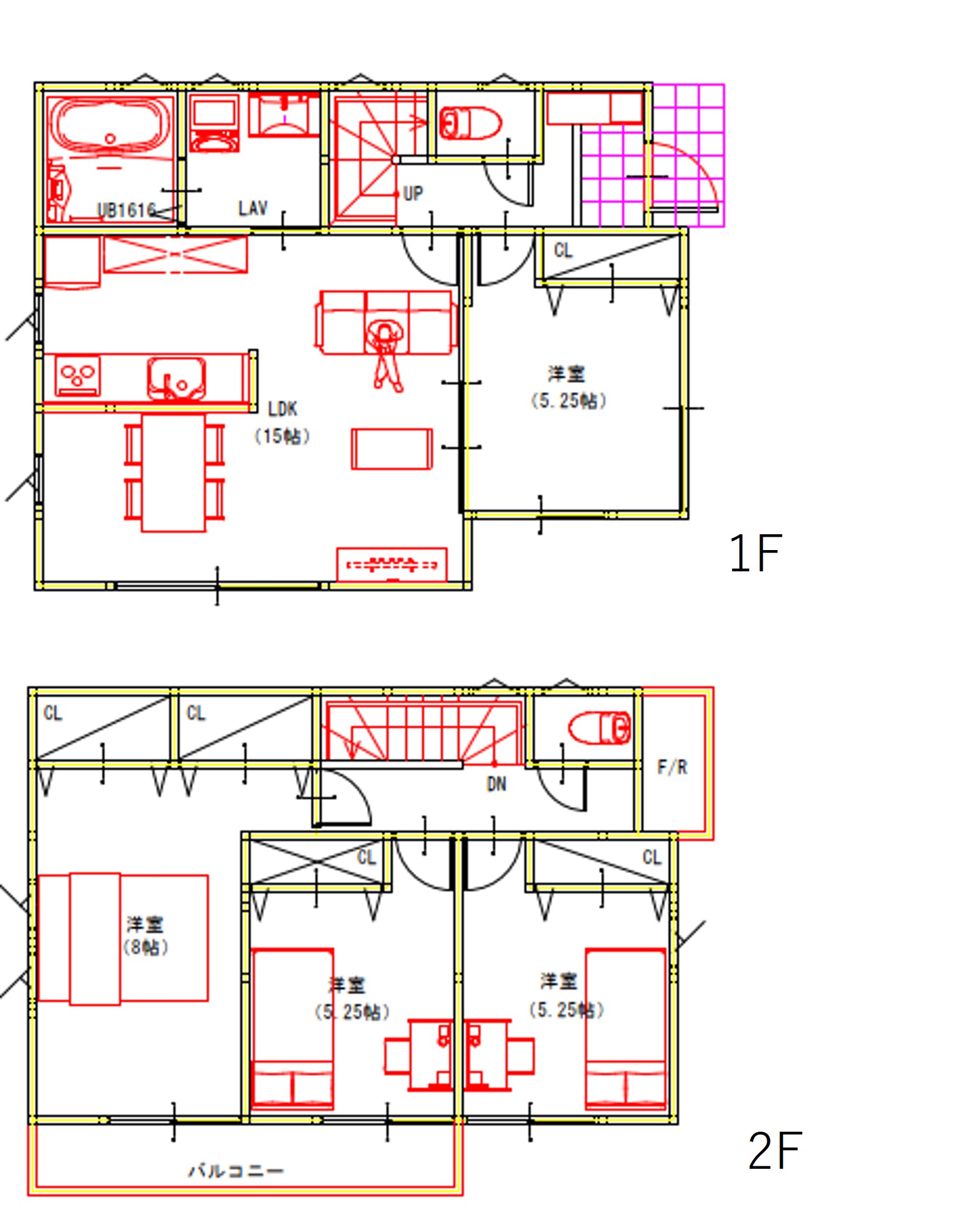
【敷地配置図・間取り】
物件詳細コメント
☆交通:JR青梅線「羽村」駅 徒歩23分
☆学区:羽村市立栄小学区・羽村市立第二中学区
☆駐車場:2台可能
☆間取り:建物自由設計
☆近隣施設:富士第一保育園 徒歩9分
東京海道病院 徒歩14分
羽村郵便局 徒歩7分
セブンイレブン羽村栄町3丁目 徒歩3分
羽村市役所 徒歩7分
富士見公園 徒歩9分
☆物件の特徴
整形地、緑豊かな住宅地、前道6m以上、建物プラン例有り、山が見える、小学校 徒歩10分以内
どうぞお気軽にお問い合わせください!
弊社ホームページでは、ネットにて来店予約を24時間受付中です♪
※付きの写真に関しては、この建物を建築する山一建設の施工事例です。
こちらをクリックし会員登録(無料)後、ログインすると全ての情報がご覧いただけます。
▼ あなたのスタイルに合わせた探し方をサポートいたします! ▼
-
call 人気物件は
お電話ください- お客様が嫌がるような営業は一切行いません。ご安心してお電話ください。
-
山一ホーム
0120-727-444
年末年始を除く
営業時間/AM10:00~PM7:30
-
directions_walk 気になったら
ご来店ください- どんな些細なことでもご相談ください。現地へのご案内も行っております。
-
〒197-0012
東京都福生市加美平2丁目14-1
JR青梅線「福生」駅より徒歩14分
-
star じっくり派は
会員登録- 山一プレミアムクラブに会員登録(無料)いただきますと会員専用物件が全てご覧いただけます!
-
山一プレミアム会員様に特別なサービスをご用意しております。
会員登録は下記ボタンをクリック!
| 所在地 | 東京都羽村市緑ヶ丘4丁目2-17他 地図で見るroom | ||
|---|---|---|---|
| 学区 | 栄小学校、羽村第二中学校 | 建物種別 | 土地 |
| 接道状況 | 一方 | 建ぺい率 / 容積率 | 50% / 100% |
| 地目 | 宅地 | 土地権利 | 所有権 |
| 建築条件 | 建築条件付 | セットバック | 無 |
| 現況 | 更地 | 引渡日(入居予定日) | 相談 |
| 用途地域 | 第一種低層住居専用 | 取引態様 | 専属 |
| 都市計画 | 市街化区域 | 国土法提出 | 不要 |
| その他費用 | |||
| 設備・条件 | 小学校徒歩5分以内、コンビニ徒歩5分以内、敷地内駐車場、駐車場(2台以上)、対面キッチン、食器洗乾燥機、IHクッキングヒーター、建築条件付 | ||
| 備考 | |||
| 情報更新日 | 2025年11月24日 | 次回更新予定日 | 2025年12月8日 |
専用車でご案内いたします
【ご自宅へお迎え】【最寄り駅等でのお待ち合わせ】【弊社へのご来社】など、ご希望条件をお伺いできれば条件に見合った物件のご紹介、まとめてのご案内も可能です。
-
専用の案内車でゆったりとおうち探しを
-
チャイルドシートもございますので
お子様連れでもご安心ください -
ご家族皆様でくつろげるおうち探し
-
エリアを熟知したスタッフが
くまなくご案内します -
台数も多数ございますので
お待たせいたしません -
環境に配慮した車種を積極的に
取り入れております
「羽村市の土地 羽村市緑ヶ丘4丁目 建築条件付売地 全3区画 A号区」にご興味いただき誠にありがとうございます。
福生市の不動産会社 山一ホームは、羽村市の不動産情報・新築一戸建て・中古一戸建て・土地・中古マンション等を数多く取り扱っております。西多摩地区エリアの不動産の事なら、 山一ホームにお任せください。
山一ホームは、羽村市に会社設立以来で7,000件以上の不動産販売実績があります。羽村市・青梅市・福生市・瑞穂町・あきる野市・日の出町・昭島市エリア特化だからできる密度の高い情報と、山一グループの分譲一戸建てブランド「GRACE COURT」の分譲事業、不動産仲介事業との連携体制により、羽村市での圧倒的なシェアを獲得できております。不動産知識・企画・提案・住まいにかかわる総合サービスを徹底追及したスタッフがお客様をサポート致しますので、お気軽にお問い合わせ下さいませ。

物件情報について
- 地積、建物床面積、仕様に変更が生じる場合があります。
- 図面と現況が異なる場合には現況を優先します。
- 物件情報は最新のものをご提供させて頂きますが、万一売約済の場合はご容赦ください。
- 掲載物件の取引態様が「仲介」となっているものは、仲介手数料減額物件を除き、ご成約の際に規定の手数料及びそれに係わる消費税を別途申し受けます。
- 建築条件付土地は土地売買契約締結後、一定期間内に当社指定の不動産会社もしくは建築業者と建築請負契約を結ぶことが前提となります。期間中に建築請負契約が成立しなかった場合、土地売買契約は白紙となり、支払った金額は全額返金されます。
- 価格は物件の代金総額を表示しており、消費税が課税される場合は税込み価格です。






