INFORMATION
- 2025.12.08
- 【グレースコート】ご成約のお知らせ
- 2025.12.05
- 【グレースコート】ご成約のお知らせ
- 2025.12.04
- 【グレースコート】ご成約のお知らせ
- 2025.12.01
- 12月13日・14日イベントのお知らせ♥
- 2025.11.28
- 【グレースコート】ご成約のお知らせ
- 2025.11.22
- 【山一建設ホームページ】リニューアルのお知らせ
- 2025.11.20
- 【グレースコート】ご成約のお知らせ
- 2025.11.10
- 【グレースコート】ご成約のお知らせ
- 2025.11.06
- ウィンターイルミネーションのお知らせ☆彡
- 2025.11.02
- 【グレースコート】ご成約のお知らせ
- 2025.10.24
- ご成約のお知らせ(栄町1丁目 387坪売地)
- 2025.10.24
- 【グレースコート】青梅市の価格更新物件情報です☁
- 2025.10.11
- 10月18日・19日イベントのお知らせ♥
- 2025.10.04
- 【グレースコート】ご成約のお知らせ
- 2025.09.22
- ご来場キャンペーンのご案内【期間限定】 ♪
土地買取システム
物件詳細この物件は会員様専用物件です。
会員登録ボタンから会員登録(無料)しログインすると全ての情報がご覧いただけます。
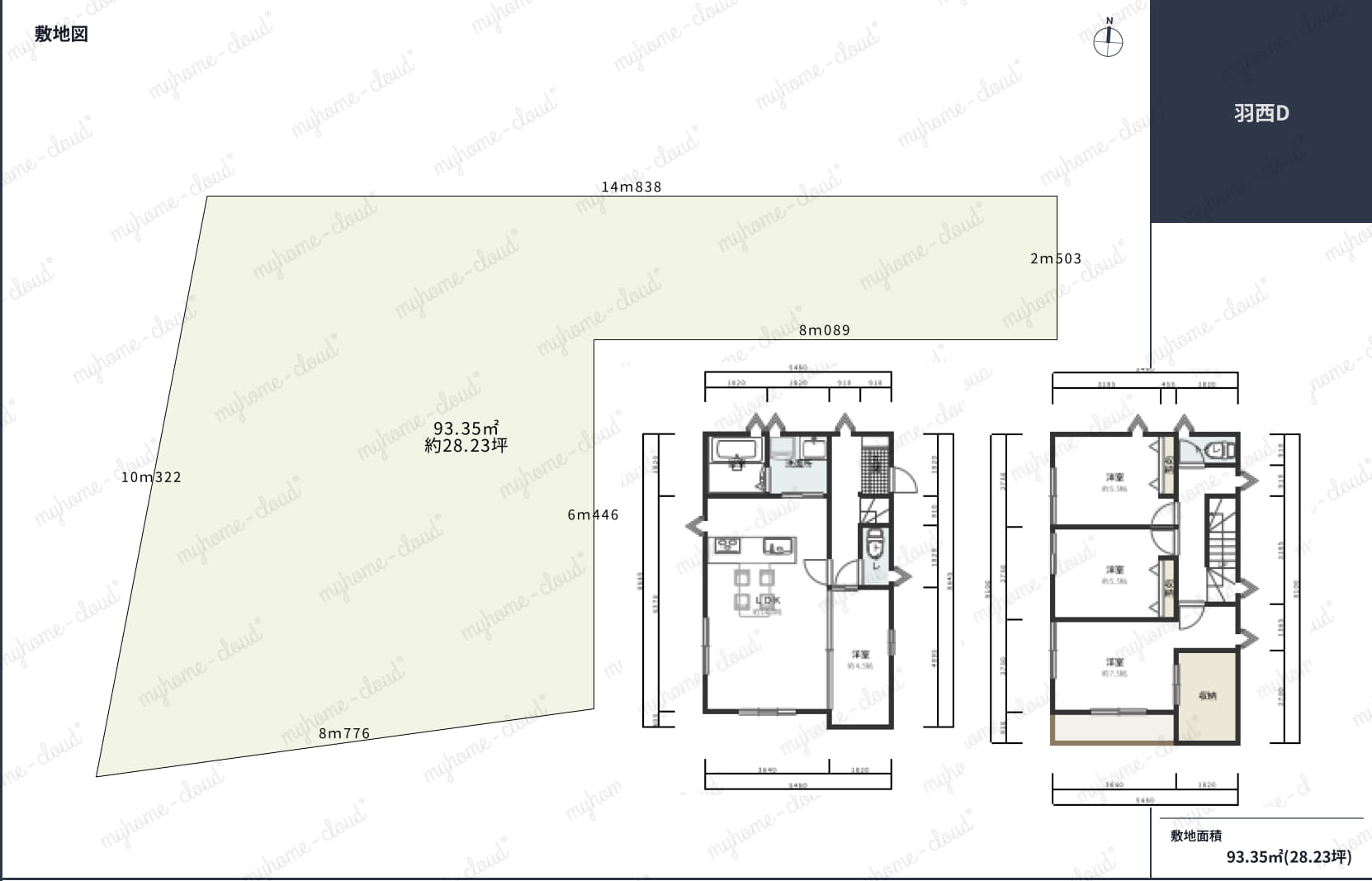
緑豊かで閑静な住宅街に、36坪超の角地をご用意。川や公園が近くにある自然に囲まれた緑豊かな住環境で、落ち着いた暮らしをゆったりとお楽しみください。建築条件付き売地の良さを最大限に活かし、建売では実現できなかったみなさまの「こうしたい!」を形に出来るそんな分譲地です。食洗機を備えたオール電化住宅仕様・設備。しっかりとした柱やTRCダンパーを組み合わせることによって、大切なお家や家族を守る頼もしいお家になります 羽村市羽西1丁目全8区画・建築条件付き売地情報
羽村市羽西1丁目 土地
1,660万円
こちらをクリックし会員登録(無料)後、ログインすると全ての情報がご覧いただけます。
-
【外観】
-
【間取】
物件詳細コメント
貴重なお時間の中で、ご希望の情報をご案内します。
お客様のご都合に合わせて「知りたい情報だけ」という短時間のご案内も可能です。
おおよその所要時間や内容は、下記をご参考ください。
◇ショートプラン ≪目安:30分~1時間≫
「お問い合わせ頂いた物件を内覧したい方」にお勧め
・現地でのお待ち合わせ、または車送迎で物件のご案内
・物件周辺の住環境、学校、公園、スーパー等もご案内可能
◇スタンダードプラン≪目安:2時間~4時間≫
「お問い合わせ頂いた物件以外も内覧したい方」にお勧め
・現地でのお待ち合わせ、または車送迎で複数物件(未公開物件含む)と周辺環境のご案内
・住宅ローン、資金計画に関するご相談
◇プラチナプラン≪目安:4時間~8時間≫
「お家探しが初めての方」にお勧め
・弊社へのご来社またはご自宅への訪問により、住宅購入のポイントをご説明
・希望条件に合致した物件(未公開物件含む)のご紹介
・住宅ローン、資金計画に関するご相談
~お昼休憩~
・希望物件と紹介させて頂いた物件のご見学
どうぞお気軽にお問い合わせください!
※写真に関しては、この建物を建築する山一建設の施工事例です。
こちらをクリックし会員登録(無料)後、ログインすると全ての情報がご覧いただけます。
▼ あなたのスタイルに合わせた探し方をサポートいたします! ▼
-
call 人気物件は
お電話ください- お客様が嫌がるような営業は一切行いません。ご安心してお電話ください。
-
山一ホーム
0120-727-444
年末年始を除く
営業時間/AM10:00~PM7:30
-
directions_walk 気になったら
ご来店ください- どんな些細なことでもご相談ください。現地へのご案内も行っております。
-
〒197-0012
東京都福生市加美平2丁目14-1
JR青梅線「福生」駅より徒歩14分
-
star じっくり派は
会員登録- 山一プレミアムクラブに会員登録(無料)いただきますと会員専用物件が全てご覧いただけます!
-
山一プレミアム会員様に特別なサービスをご用意しております。
会員登録は下記ボタンをクリック!
| 所在地 | 東京都羽村市羽西1丁目1428番3他 地図で見るroom | ||
|---|---|---|---|
| 学区 | 羽村西小学校、羽村第一中学校 | 建物種別 | 土地 |
| 接道状況 | 一方 | 建ぺい率 / 容積率 | 40% / 80% |
| 地目 | 宅地 | 土地権利 | 所有権 |
| 建築条件 | 建築条件付 | セットバック | 無 |
| 現況 | 更地 | 引渡日(入居予定日) | 相談 |
| 用途地域 | 第一種低層住居専用 | 取引態様 | 専属 |
| 都市計画 | 市街化区域 | 国土法提出 | 不要 |
| その他費用 | |||
| 設備・条件 | 小学校徒歩10分以内、コンビニ徒歩10分以内、スーパー徒歩10分以内、敷地内駐車場、駐車場(2台以上)、対面キッチン、食器洗乾燥機、IHクッキングヒーター、角地、低層住居専用地域、建築条件付 | ||
| 備考 | |||
| 情報更新日 | 2025年11月25日 | 次回更新予定日 | 2025年12月9日 |
専用車でご案内いたします
【ご自宅へお迎え】【最寄り駅等でのお待ち合わせ】【弊社へのご来社】など、ご希望条件をお伺いできれば条件に見合った物件のご紹介、まとめてのご案内も可能です。
-
専用の案内車でゆったりとおうち探しを
-
チャイルドシートもございますので
お子様連れでもご安心ください -
ご家族皆様でくつろげるおうち探し
-
エリアを熟知したスタッフが
くまなくご案内します -
台数も多数ございますので
お待たせいたしません -
環境に配慮した車種を積極的に
取り入れております
「羽村市の土地 羽村市羽西1丁目 建築条件付売地 全8区画 D棟」にご興味いただき誠にありがとうございます。
福生市の不動産会社 山一ホームは、羽村市の不動産情報・新築一戸建て・中古一戸建て・土地・中古マンション等を数多く取り扱っております。西多摩地区エリアの不動産の事なら、 山一ホームにお任せください。
山一ホームは、羽村市に会社設立以来で7,000件以上の不動産販売実績があります。羽村市・青梅市・福生市・瑞穂町・あきる野市・日の出町・昭島市エリア特化だからできる密度の高い情報と、山一グループの分譲一戸建てブランド「GRACE COURT」の分譲事業、不動産仲介事業との連携体制により、羽村市での圧倒的なシェアを獲得できております。不動産知識・企画・提案・住まいにかかわる総合サービスを徹底追及したスタッフがお客様をサポート致しますので、お気軽にお問い合わせ下さいませ。

物件情報について
- 地積、建物床面積、仕様に変更が生じる場合があります。
- 図面と現況が異なる場合には現況を優先します。
- 物件情報は最新のものをご提供させて頂きますが、万一売約済の場合はご容赦ください。
- 掲載物件の取引態様が「仲介」となっているものは、仲介手数料減額物件を除き、ご成約の際に規定の手数料及びそれに係わる消費税を別途申し受けます。
- 建築条件付土地は土地売買契約締結後、一定期間内に当社指定の不動産会社もしくは建築業者と建築請負契約を結ぶことが前提となります。期間中に建築請負契約が成立しなかった場合、土地売買契約は白紙となり、支払った金額は全額返金されます。
- 価格は物件の代金総額を表示しており、消費税が課税される場合は税込み価格です。






